DMC型脉冲式仓顶除尘器适宜布置在各种粉料贮存库的顶部,用于过滤含尘气体。
主要技术说明及参数
DMC型脉冲式仓顶除尘器主要技术参数见下表,在选型时应注意入口粉尘浓度,在技术性能上,透过滤袋的气流速度(即过滤风速)与气体含尘浓度成反比,因此,在确定过滤面积时,还须满足滤袋的聚尘能力(即两次清灰期间滤袋单位面积上大允许积尘数量),一般聚尘能力不大于400克/m2,可按下式计算:聚尘能力=入口气体含尘浓度x过滤风速x两次清灰间隔时间,计算结果如超过聚尘能力,应调整过滤风速,增加过滤面积。
技术参数
|
技术参数型号
|
DMC-12
|
DMC-24
|
DMC-36
|
DMC-48
|
DMC-60
|
DMC-72
|
DMC-84
|
DMC-96
|
DMC-108
|
DMC-120
|
|
过滤面积(m2)
|
9
|
18
|
27
|
36
|
45
|
54
|
63
|
72
|
81
|
90
|
|
滤袋数量
|
12
|
24
|
36
|
48
|
60
|
72
|
84
|
96
|
108
|
120
|
|
滤袋规格
|
Φ120x2000
|
|||||||||
|
工作温度(℃)
|
<120
|
|||||||||
|
设备压力(Pa)
|
1000-1500
|
|||||||||
|
除尘效率
|
99%
|
|||||||||
|
入口含尘浓度
|
<15(g/m3)
|
|||||||||
|
过滤风速m/min
|
0.5-4
|
|||||||||
|
处理风量m3/h
|
270-2150
|
540-4300
|
810-6480
|
1080-8640
|
1350-108000
|
1620-12900
|
1890-15100
|
2160-17200
|
2430-17200
|
2700-21600
|
|
喷吹气压(MPa)
|
0.5-0.7
|
|||||||||
|
脉冲电磁阀(个)
|
2
|
4
|
6
|
8
|
10
|
12
|
14
|
16
|
18
|
20
|
|
脉冲宽度(m)
|
0.1-0.2
|
|||||||||
|
脉冲周期(s)
|
60-120
|
|||||||||
|
脉冲间隔(s)
|
1-50
|
|||||||||
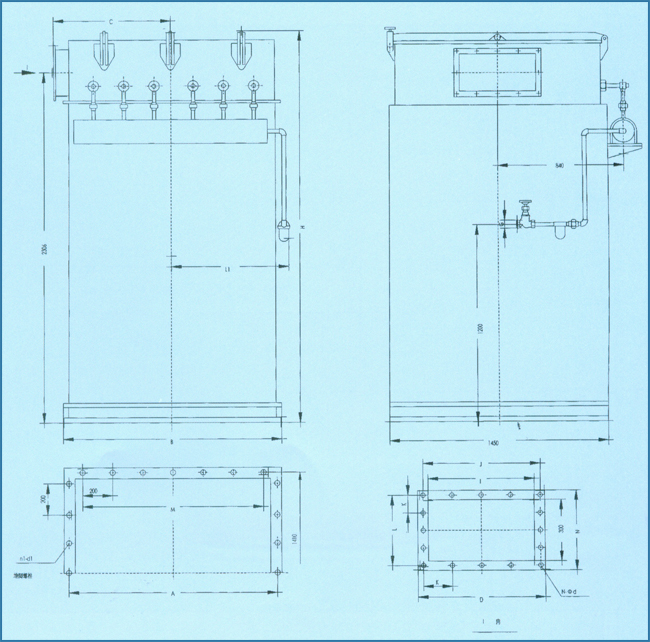
外形尺寸
外形尺寸图

苏公网安备 32020602000269号